< img height="1" width="1" style="display:none" src="https://www.facebook.com/tr?id=1789395722017590&ev=PageView&noscript=1" />

Industrial Oven/Furnace Solution, Higher efficiency, Smart Control

Customized industrial ovens and furnaces built based on your condition and specifications. Custom
designed and manufactured for processes that never existed before, and our machines are borned with heats recycling system to reduce energy consumption.

Designed Tuck-in Composite Material Curing Oven With Vacuum System - areospace, automobile, composite material

Customizable composite curing ovens with necessary equipment such as vacuum systems, computer host for data collection and recording. For Aerospace, automotive and carbon fiber

Product introduction:

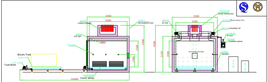
Main Parameter   

Available room space: W5000*D4000*H5000mm

Working chamber: W3600*D3600*H2500mm

Outer dimension: W4000*D4300**H4500 mm

Temperature range: Room temperature to 300℃ adjustable, ±3℃

Out shell temperature: The temperature does not exceed ambient +15°C, except around the door.

Air recycles: Large air volume internally recirculate the air, hot air get out from both sides and back to the top

Power Source : Three-phase, AC380V, 50HZ

Power: 150KW


Control system     

Adopt OMRON thermostat and SCR, to control the temperature, the thermostat is with 485 protocol. Comes with P.I.D self-tuning module calculation output, precise control; Siemens 1200 PLC and 12’ HMI; Host Computer and customized software

Electrical cabinet: Independent control cabinet, self-made

Automatic constant temperature : The temperature controller can automatically calculate the output power according to the temperature value set by the user using PID. The closer it is to the temperature setting value, the smaller the output power is, so as to achieve the purpose of constant temperature control and save energy.

Vacuum System   

Vacuum connections: Total junctions for each side, 3 x Vacuum Point Entries and 3 x Vacuum Point Monitoring points; The mounted height to the floor is around 1200mm

Vacuum pump: Brand of Pump is Leybold, CVS100-1×SV25B available for vacuum level -28 to -29.9 InHg

Safety function:

Audible alarm: Equipped with warning light with buzzer.

Emergency stop: On HMI and control cabinet, Emergency stop is equipped

Over temperature controller: When the temperature exceeds the set value of the over-temperature protection thermostat,: the heating power is automatically cut off

Grounding cable: Structural safety grounding protection.

Leakage Protection: Equipped with leakage protection switch

Power phase loss-phase sequence protection: Equipped with a phase sequence protector: to prevent the motor from being reversed when the power is reconnected, there is no strong wind, and the motor is burned out due to the lack of phase of the power supply.

Over temperature alarm: When the actual detected temperature exceeds the set value of the over-temperature protection thermostat: the heating power will be automatically cut off, and the sound and light alarm will be activated to play a double protection function.


Get in Touch

If you have any questions about the subscription or are not sure which plan is right for you, contact our team and let’s schedule a call.

+8613771727936

Send us a message.